salon 2
salon 2

Rénovation d'un gîte dans le Beaujolais

Nous avons eu la chance de travailler sur ce beau projet pour la conception des plans du rez-de-chaussée de leur gite de 14 personnes. Après avoir travaillé longuement sur leurs plans grâce à kozikaza, les clients ont fait appel à nous pour leur apporter une aide professionnelle et réaliser ensemble le projet dont ils rêvaient. Nous avons alors conçu les espaces de vies de ce gite.

salon après-1
salon après-1
Rénovation de gîte
salon 2
salon après-1
cuisine après
RDC Projet -1
rdc EDl  -1

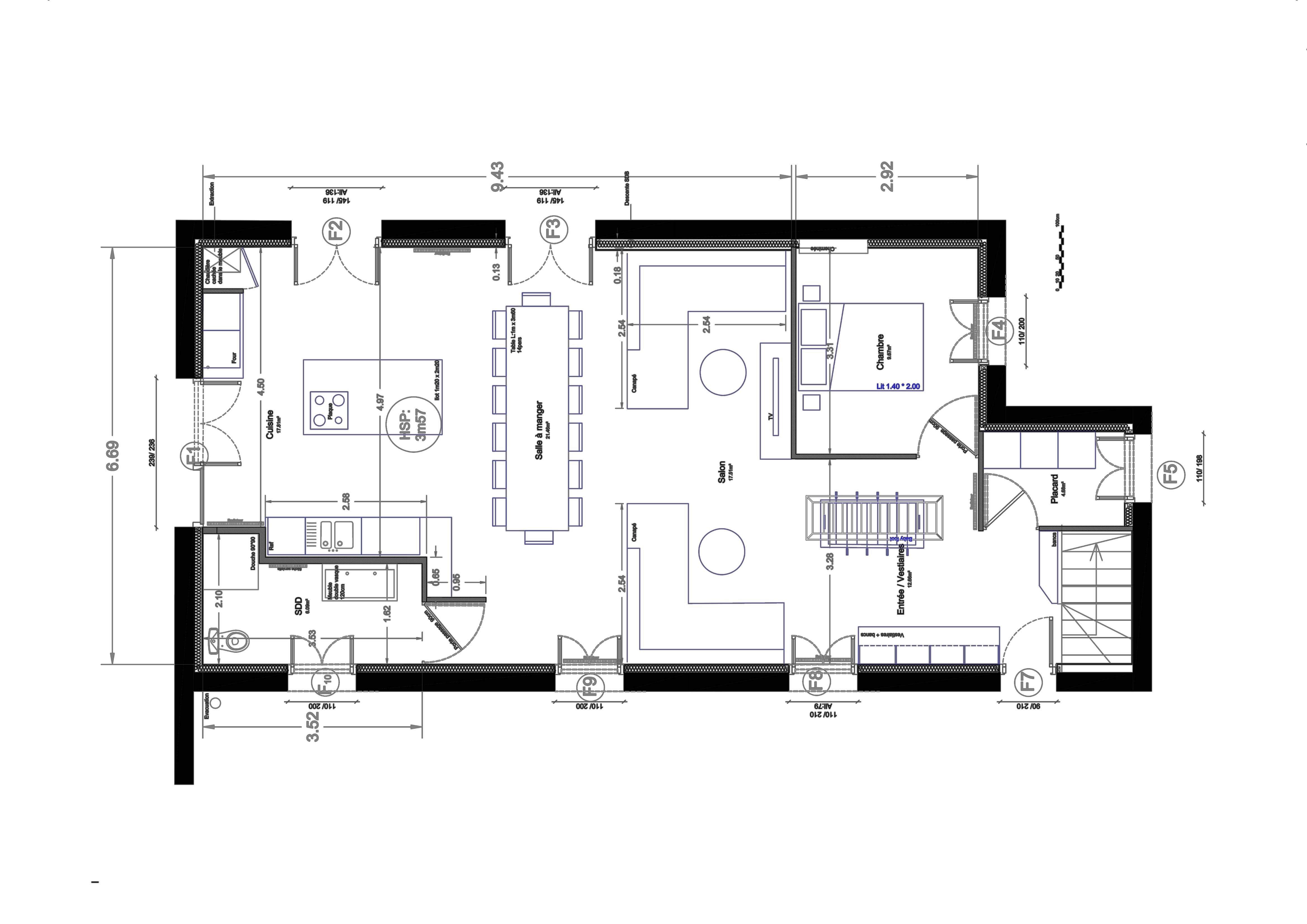
Le projet

Qui ne rêve pas de rénover une belle villa pleine de charme pour en faire un gîte et y accueillir ses amis et sa famille pour des moments magiques ?! C’est le rêve que s’apprête à réaliser la Villa Beaujolaise.

Nous avions certaines contraintes techniques comme la localisation des évacuations. La salle de bain et la cuisine se sont donc imbriquées pour garder le maximum de surfaces dédiées à la pièce principale.

Une chambre devait également trouver sa place, permettant d’accueillir les grands-parents dans le but de leur éviter de monter l’escalier pour accéder aux chambres.

La pièce principale devait pouvoir accueillir 14 personnes, nous avons proposé de créer dans l’espace, 4 lieux de vie.

Une belle cuisine lumineuse grâce à une grande baie vitrée, avec en son centre un grand ilot pour des moments de cuisine partagés.

Une salle à manger accueillant une immense table de réception.

Un espace salon avec deux très grands canapés, et pour finir, au pied du très bel escalier, un espace d’entrée / jeux, permettant d’y installer un espace vestiaire et pour le plaisir, un baby-foot pour des parties entre amis.

Sous le baby-foot, la trappe d’accès à la cave sera mise en valeur et fera partie intégrante de la pièce.

Si le projet vous intrigue et nous n’en doutons pas… vous pouvez suivre l’aventure de cette rénovation sur le compte Instagram de la_villa_beaujolaise, (que vous pouvez louer pour un week end ou de plus longue vacances).